Skip to content

2990 Chimes

A force of energy that often goes unnoticed is the gentle ever-present wind on King Street. The street and the life it contains is shaped by this invisible force. Wind tosses your hair around in the streets of the Financial District; it wafts the scent of lavender across St. James Park on cool mornings; and it offers a late night respite to party-goers as they step outside for fresh air in the Entertainment District. The wind adds a layer of physical sensation to a street that is already so enthralling.

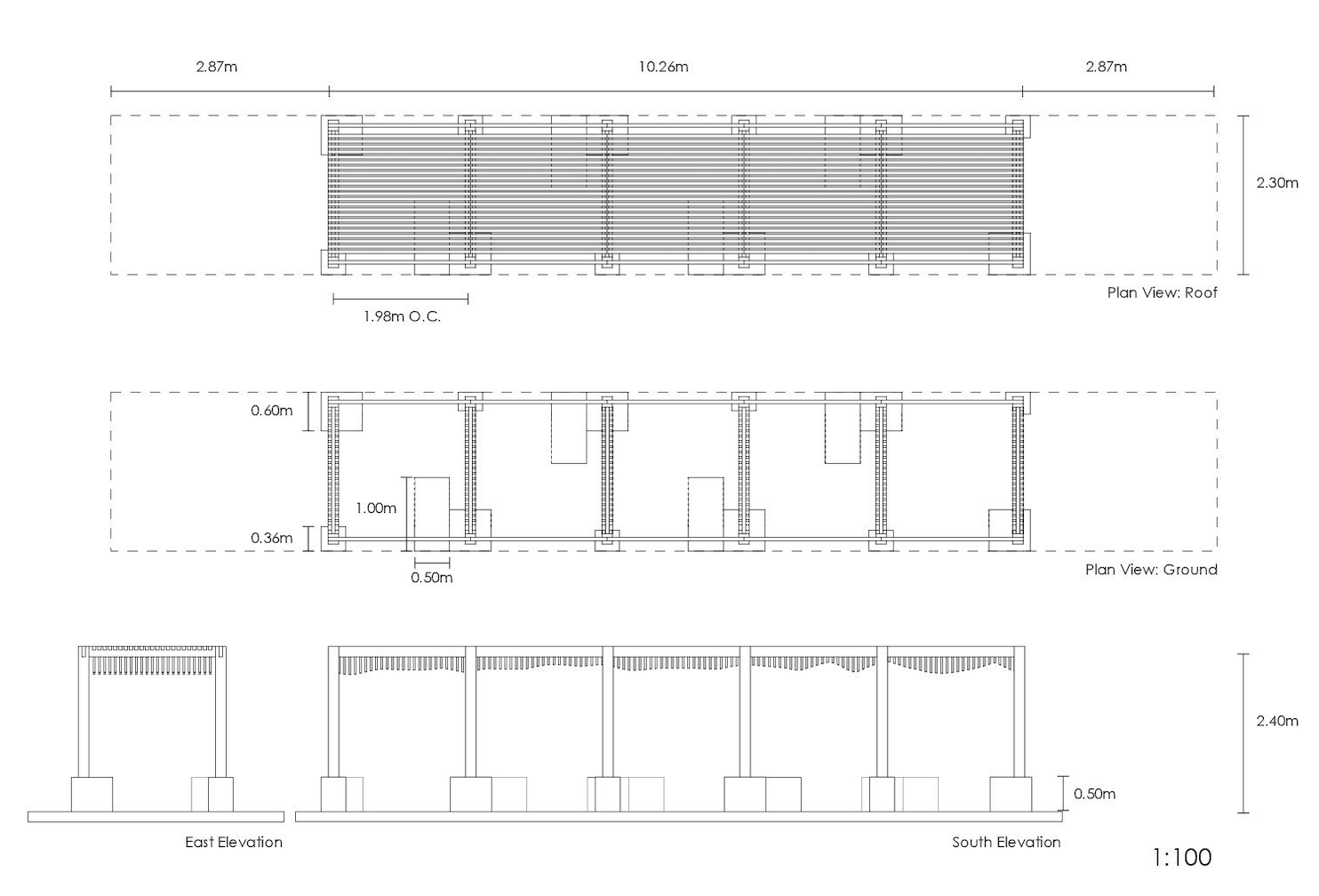
Our project, 2990 Chimes, celebrates the oft-forgotten sensory experience of wind on King Street by turning it into something we can see, hear, and touch. Simple in it's material palette and assemblage, 2990 Chimes manifests the ethereal qualities of wind in a physical medium. The undulating form of the chimes is derived from the average wind speeds for Toronto graphed over the last 25 years. We invite the community to celebrate the wind with us by relaxing in the shade of our installation, which transforms the invisible, dynamic energy of wind into cascading sounds and a pleasant rippling motion across 2990 Chimes.

Proposal for the 2019 King St Parklets Competition